
操作臺控制臺圖紙下載
中創美是擁有多年生產制造經驗的控制臺操作臺生產廠家,我們為用戶提供高質量的防爆控制臺防爆操作臺,為用戶提供全面的技術服務和圖紙設計,包括空間規劃圖、平面布置圖、三維效果圖、結構示意圖等等,為幫助用戶或者系統集成商在項目前期過程中進行圖紙設計,我們在這里向您提供操作臺控制臺圖紙下載服務,如您需要更多的中央控制室操作臺圖紙,請與我們的技術人員取得聯系。

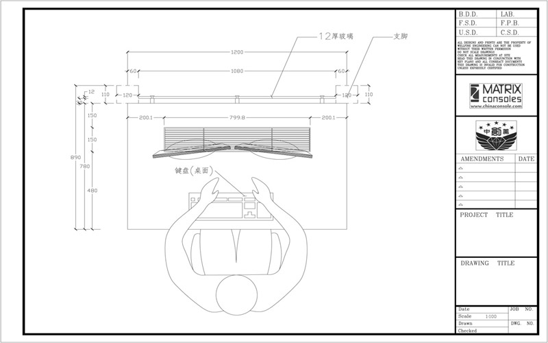
1、操作臺控制臺圖紙
操作臺控制臺圖紙下載鏈接2、監控室控制臺操作臺圖紙
監控室控制臺操作臺圖紙圖紙下載鏈接3、操作臺電器控制臺圖紙
操作臺電器控制臺圖紙下載鏈接4、中央控制室操作臺圖紙
中央控制室操作臺圖紙下載鏈接5、防爆控制臺防爆操作臺圖紙
防爆控制臺防爆操作臺圖紙下載鏈接如您需要更多操作臺控制臺圖紙;
如您需要更多技術方案或技術支持;
如您需要采購監控控制臺操作臺系列產品;
請聯系中創美科技銷售人員或技術支持服務部,歡迎您的來電。
更多操作臺控制臺圖紙下載-
控制臺操作臺為什么那么貴?
控制臺操作臺是一種應用于各種監控指揮中心使用的操作平臺,可用于安裝各種設備,提供操作人員的操作界面,和辦公家具的性質比較像,那控制臺操作臺為什么那么貴? 一、控制臺操作臺